Biuro w srodkuPowierzchnie Biurowe
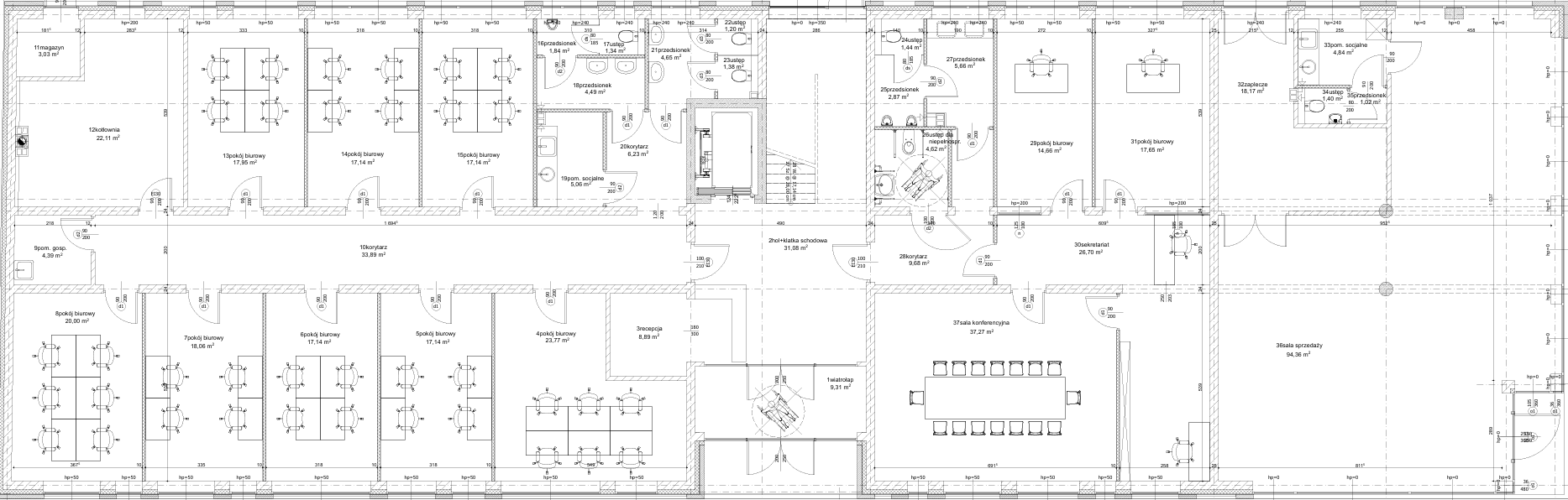
Układ pięterOferujemy elastyczne powierzchnie biurowe dopasowane do potrzeb najemców – dostępne moduły zaczynają się już od 16 m². Całkowita powierzchnia budynku wynosi 2139 m², co pozwala na indywidualną aranżację przestrzeni na każdym piętrze. Dzięki przejrzystemu układowi i szerokim możliwościom adaptacji, łatwo dopasujesz biuro do specyfiki swojej działalności.
ParterPietro 1Pietro 2Pietro 3
W ramach wynajmuZapewniamy najemcom dostęp do nowoczesnej przestrzeni biurowej wyposażonej w szereg udogodnień podnoszących komfort i efektywność pracy. Wszystkie rozwiązania dostępne w budynku zostały zaprojektowane z myślą o sprawnym funkcjonowaniu firm każdego dnia.
Parking
Miejsca parkingowe dla najemców oraz ich gości, gwarantujące wygodny i bezpieczny dostęp do budynku. Dostępność za dodatkową opłatą.
Konserwator
Obecność konserwatora budynku zapewnia sprawne działanie instalacji technicznych i szybkie usuwanie ewentualnych usterek.
Recepcja 7-16
Obsługa recepcyjna w godzinach 7:00–16:00, wsparcie dla najemców i gości oraz bieżąca kontrola dostępu do budynku.
Ochrona
Ochrona budynku, zapewniająca bezpieczeństwo najemców oraz ich mienia.
Sprzątanie części wspólnych
Regularne sprzątanie powierzchni wspólnych w budynku oraz wywóz śmieci, zapewniające komfortowe i higieniczne warunki pracy.
Czystość terenu zewnętrznego
Bieżące utrzymanie czystości wokół budynku, sezonowe odśnieżanie oraz mycie zewnętrznych powierzchni okiennych dwa razy w roku.